Multilocale in vendita

Roma, Corso Vittorio Emanuele II
€ 1.090.000
Prezzo aggiornato
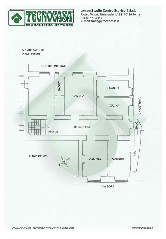
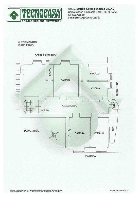
205 Mq 205 Mq
1 bagno 1 bagno

Multilocale in vendita

Roma, Corso Vittorio Emanuele II

Descrizione annuncio

Nel cuore più autentico di Roma, tra Piazza Navona e Campo de’ Fiori, proponiamo in vendita un elegante appartamento di ampia metratura, situato al primo piano del celebre Palazzo Torlonia, edificio storico di grande pregio architettonico, dotato di ascensore e servizio di portineria.

L'immobile, con una superficie di circa 205 mq, dispone di doppio ingresso e una distribuzione degli spazi che si presta sia a un utilizzo residenziale che professionale. Internamente è composto da un ampio salone con angolo cottura, tre camere da letto (di cui una con camino), due servizi e un balcone con affacci interni che garantiscono silenzio e privacy.

La doppia esposizione e le numerose finestre rendono l’ambiente particolarmente luminoso, mentre i soffitti alti 3,30 metri e il parquet nelle camere aggiungono eleganza e carattere agli spazi.

L'appartamento è da ristrutturare, con notevoli possibilità di personalizzazione: le pareti tramezze presenti consentono di modulare facilmente la disposizione interna secondo gusti e necessità.

La proprietà si trova in una posizione strategica, su Corso Vittorio Emanuele II, a breve distanza da Castel Sant’Angelo, Trastevere, Piazza Venezia e dalle principali attrazioni storiche e culturali della città.

Un'opportunità di sicuro interesse, in uno dei contesti più esclusivi della capitale, dove storia, prestigio e qualità della vita si incontrano in modo armonioso.

Per informazioni o per organizzare una visita riservata:
351.804.6473 oppure al 06.6784311

Mostra tutto

Nelle vicinanze

Trasporto pubblico Trasporto pubblico
Lepanto
Lepanto
1,5 Km
Ottaviano
Ottaviano
1,6 Km
stazione di Roma San Pietro
stazione di Roma San Pietro
1,2 Km
Città del Vaticano
Città del Vaticano
1,5 Km
Arenula/Cairoli
Arenula/Cairoli
710 m
Ricariche auto elettriche Ricariche auto elettriche
Eneldrive Teatro Valle
460 m
Roma Piazza Sant'Andrea | EnelX
460 m
Eneldrive Piazza Navona
570 m
Eneldrive Palazzo Montecitorio
840 m
Roma Torre Anguillara | EnelX
990 m
Scuole Scuole
Virgilio
230 m
Pontificia Università della Santa Croce
490 m
Liceo Vittoria Colonna
520 m
Grano & Farina Cooking School
550 m
Pontificia Accademia Ecclesiastica
680 m
Farmacia Farmacia
Farmacia Langeli
50 m
Farmacia
150 m
Parafarmacia
500 m
óptica
660 m
Dottor Grossi
670 m
Ospedali Ospedali
Pronto Soccorso Ospedale "Santo Spirito in Sassia"
620 m
Ospedale Santo Spirito in Sassia
680 m
Ospedale Bambino Gesù
690 m
Fatebenefratelli
1,0 Km
Pronto Soccorso Ospedale "San Giovanni Calibita"
1,0 Km
Supermercati Supermercati
Pam Local
40 m
Coop
130 m
Carrefour express
200 m
COOP
420 m
Despar
550 m
Negozi Negozi
WP Outlet
110 m
Carrefour Express
110 m
Cinzia Vestiti Usati
130 m
Wools
160 m
Kolby
170 m
Bar Bar
Capitan Cosmo
60 m
Jerry Thomas Speakeasy
90 m
Fluid
120 m
Argot
190 m
Level Club
210 m
Ristoranti Ristoranti
Pipero Roma
10 m
cantina e cucina
50 m
Stuffed Pizza
50 m
La Locanda del Pellegrino
60 m
Trattoria Settimio
70 m
Mostra tutto

Caratteristiche

Rif.:
61115732
Piano:
1 di 6 con ascensore (Piano basso)
Balconi:
1
Camere da letto:
3
Arredamento:
Assente
Condizionamento:
Autonomo
Mostra tutto
Prezzo Prezzo
€ 1.090.000
Rata mutuo Rata mutuo
€ 5.038 / mese
Spese annue Spese annue
€ 1.400
Proponi il tuo prezzoProponi il tuo prezzo

Classe Energetica

G
G
G
G
G
G
G
G
G
EP globale non rinnovabile:
175.00 kW h/m² anno
EP globale rinnovabile:
175.00 kW h/m² anno
EP invernale del fabbricato:
EP estiva del fabbricato:
Anno di costruzione:
1880
Riscaldamento:
Autonomo
Tipo impianto:
A radiatori
Tipo alimentazione:
Altro

Prezzo ridotto di €1 (9%%)

Ti interessa visionare l'immobile?

Fissa un appuntamento  Fissa un appuntamento

Richiedi informazioni

* Questi campi sono obbligatori

Calcola il tuo mutuo

Semplice e senza impegno
Anticipo

( % )
Mutuo

( % )

pochi semplici passi

inserisci i tuoi dati
Questionario completato
Grazie per aver richiesto un appuntamento senza impegno con un nostro Consulente del Credito e Assicurativo.

Hai inserito correttamente tutti i dati necessari e a breve riceverai una e-mail con un link da convalidare per inviare i tuoi dati.
Affiliato
Studio Centro Storico 1 Srl
Corso Vittorio Emanuele II , 196 00186 Roma (RM)

Il nostro staff


  • Salvatore Leggio
    Affiliato

  • Chiara Polidori
    Coordinatrice

  • Stephan Leonard Asanza
    Collaboratore
Corso Vittorio Emanuele II , 196 00186 Roma (RM)
Zona: Centro storico-Prati Cavour
Mostra su mappa
Orari: Lunedì - Sabato 09:00 - 20:00 Domenica su appuntamento
Affiliato
Studio Centro Storico 1 Srl
Corso Vittorio Emanuele II , 196 00186 Roma (RM)

2025 Tecnocasa Franchising S.p.A. - P. IVA 08365160152 - Via Monte Bianco 60/A 20089 Rozzano (MI). Ogni agenzia ha un proprio titolare ed è autonoma. Privacy policy | Policy utilizzo | Cookie policy